Residenza Fenice
Residenza Fenice: l’incontro tra Storia e Innovazione nel cuore di Alba
All’angolo tra Corso Langhe e Via Gorizia nascerà un esclusivo intervento di ristrutturazione edilizia, progettato per offrire un'esperienza abitativa di nicchia, dove il fascino della tradizione architettonica albese dialoga armoniosamente con le più moderne tecnologie del vivere contemporaneo.
Il complesso si distingue per la sua architettura ricercata: se la facciata su Corso Langhe conserva e reinterpreta gli elementi storici e documentari (come i raffinati balconi con modiglioni e il cornicione classico), il corpo su Via Gorizia svela un’anima contemporanea, caratterizzata da un elegante rivestimento in pannelli metallici.
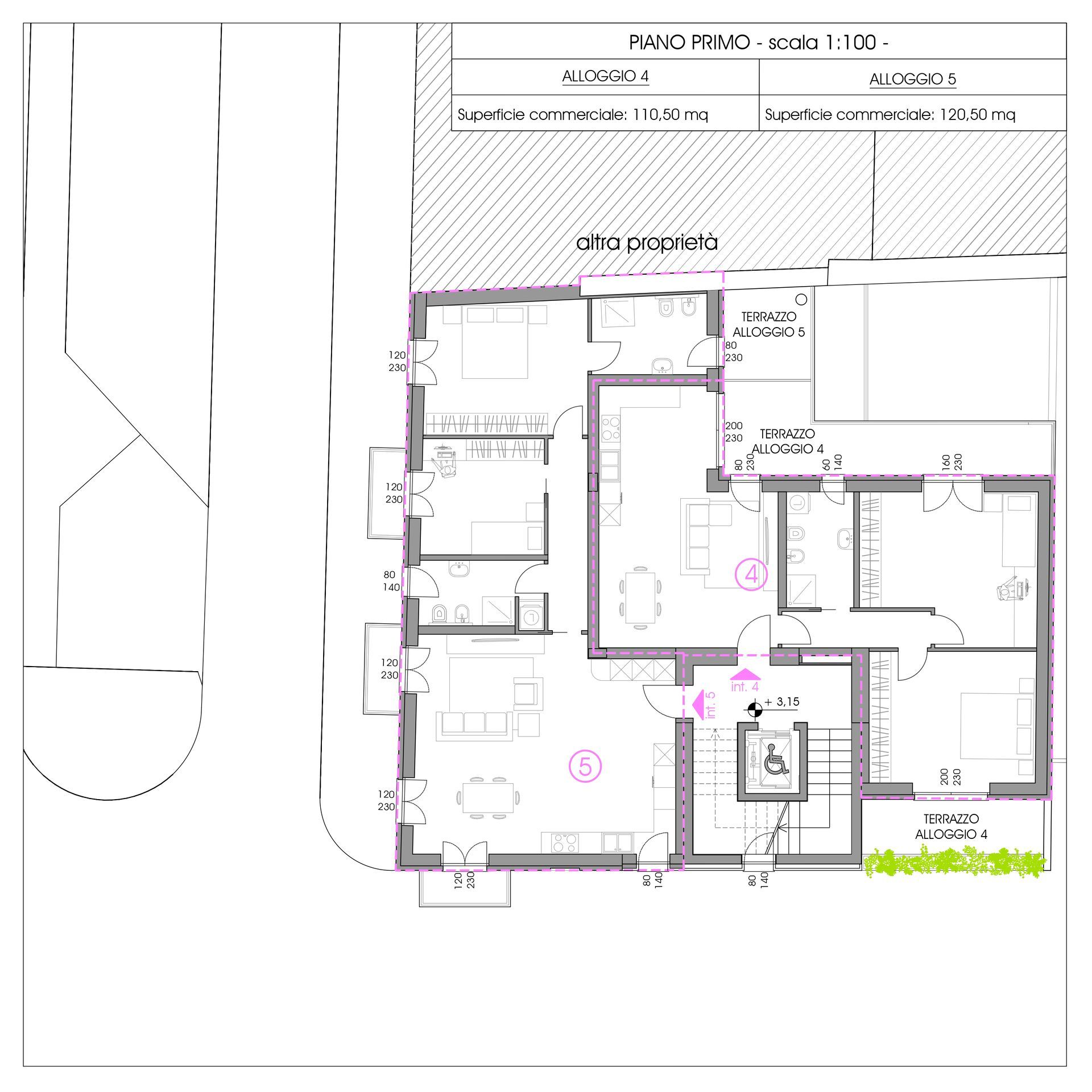
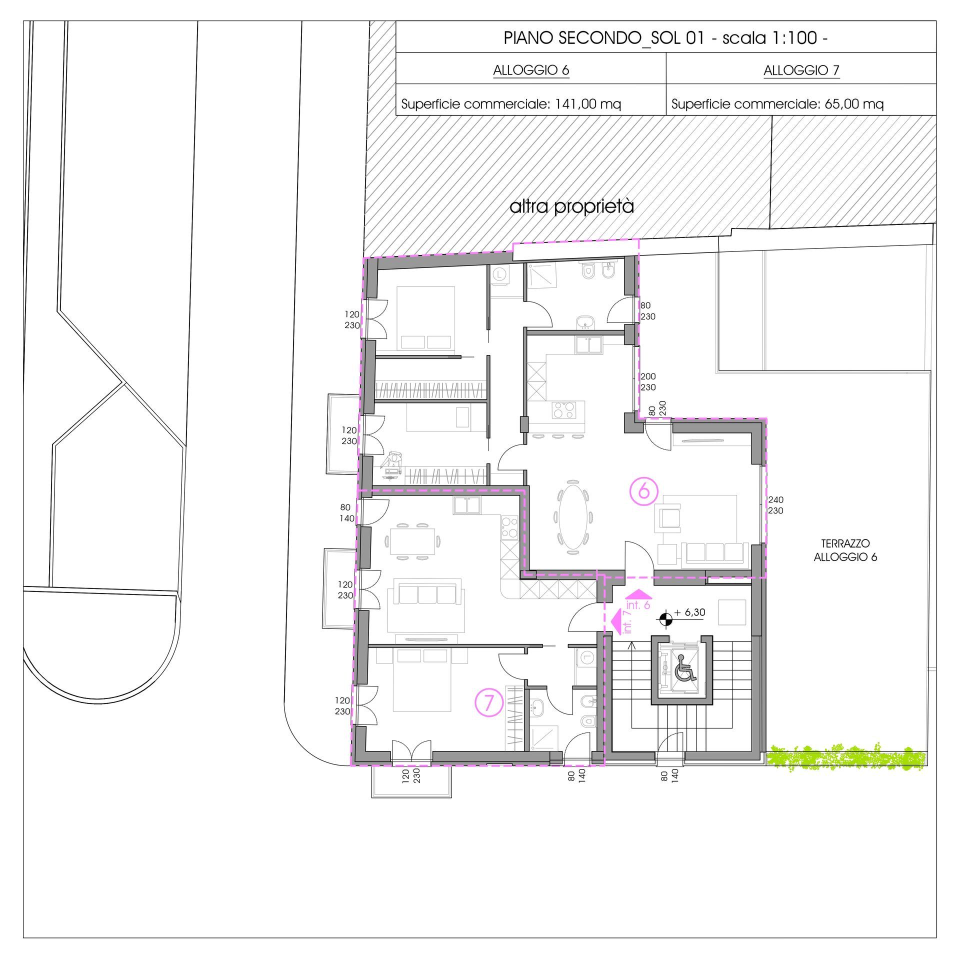
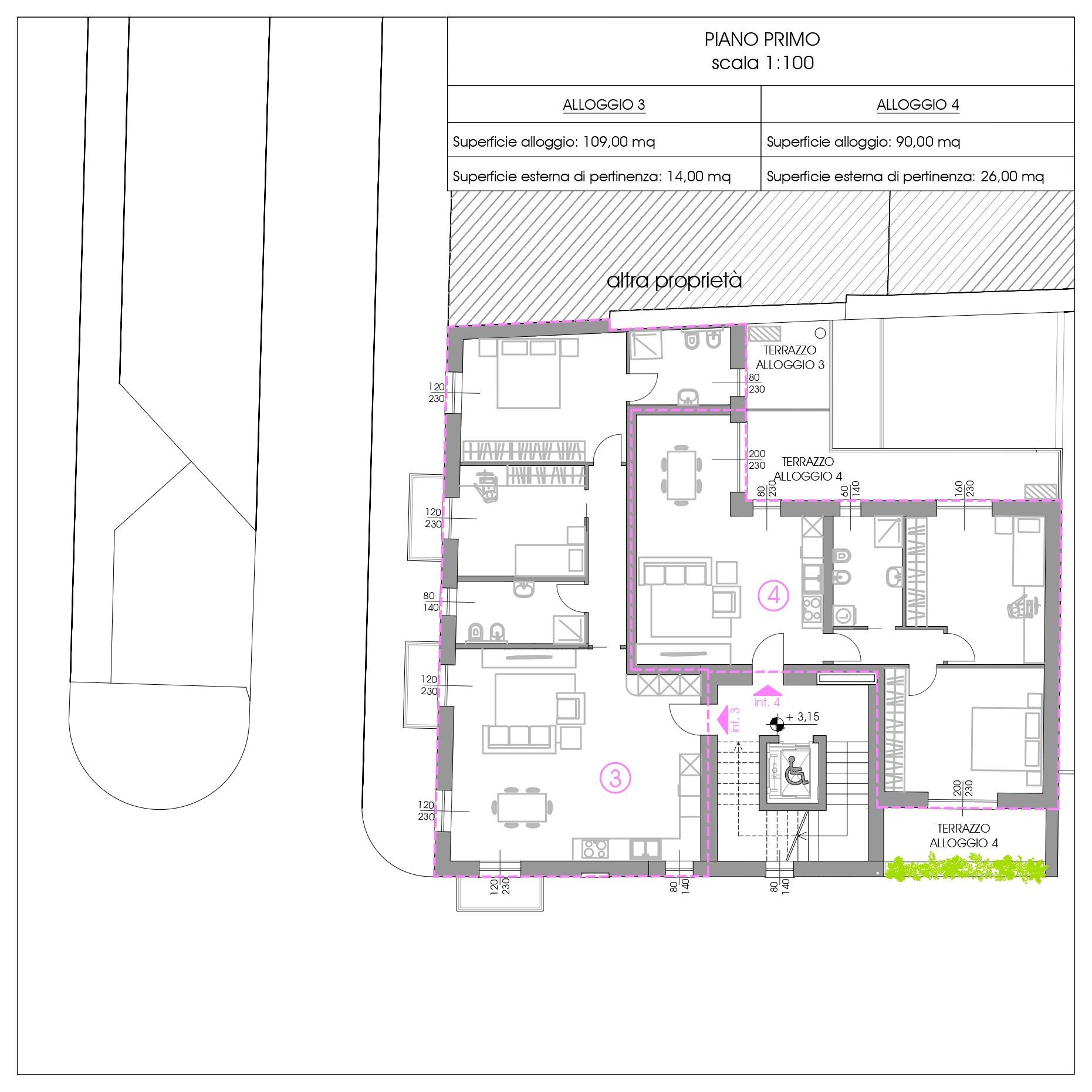
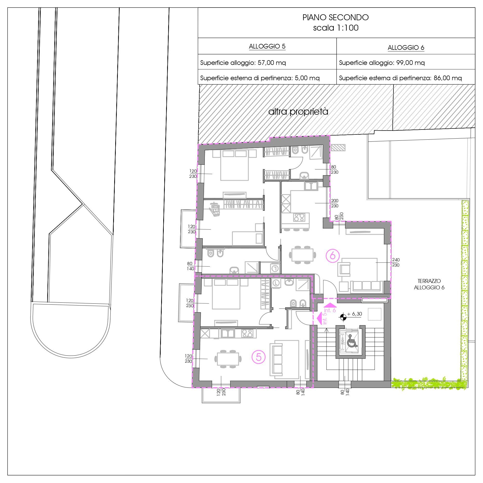
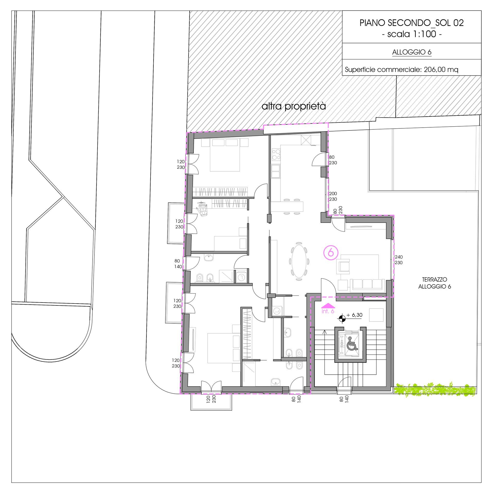
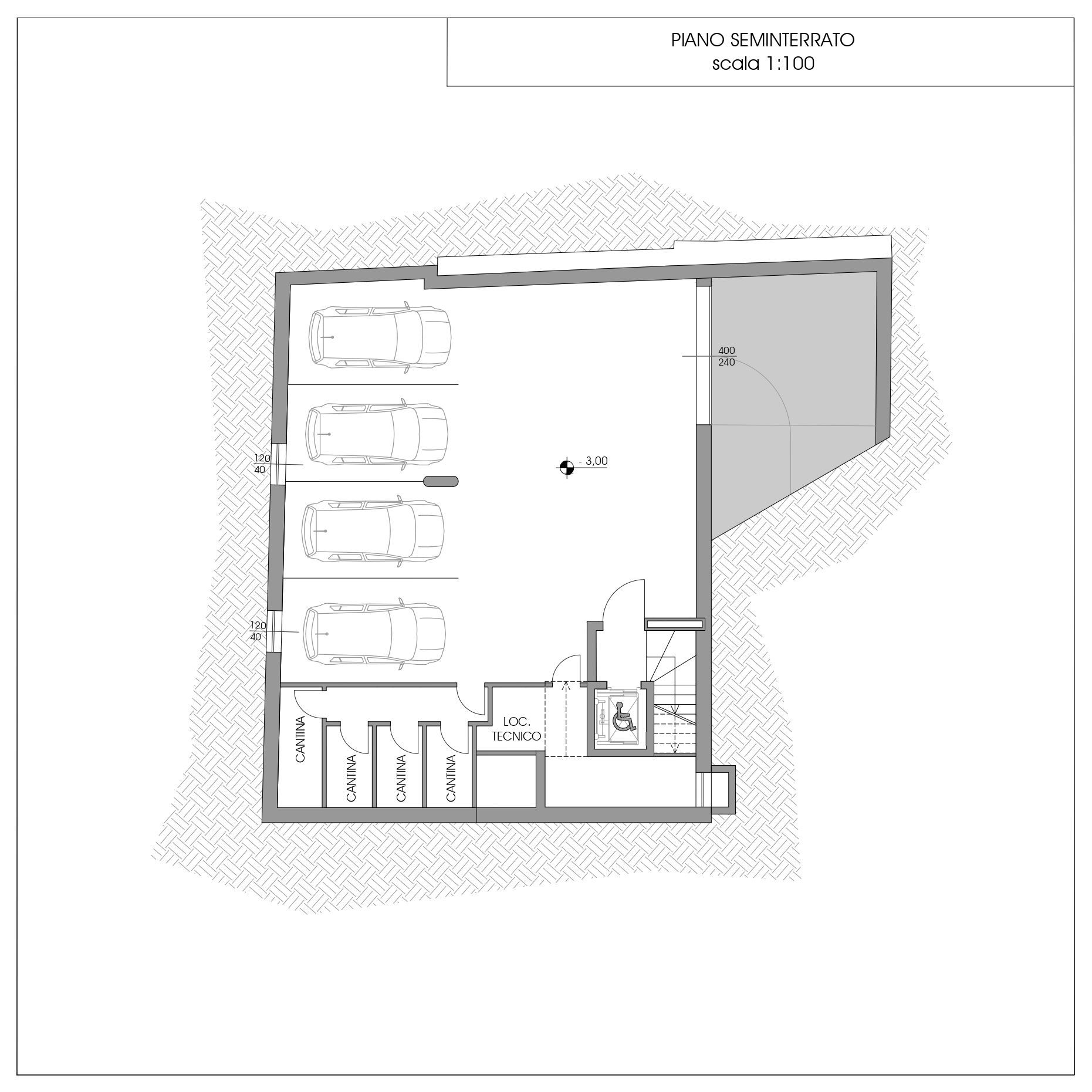
La residenza accoglierà 6/7 unità abitative indipendenti, garantendo massima privacy, ampi spazi e una certificazione in Classe Energetica A4.
Caratteristiche distintive:
Involucro performante:
Infissi di alta qualità:
Teleriscaldamento e impianti autonomi: Ogni abitazione sarà allacciata alla rete cittadina del teleriscaldamento, una scelta ecologica e sicura. Gli impianti di riscaldamento e raffrescamento saranno gestiti autonomamente per il massimo comfort personalizzato.
Energia pulita: Un impianto fotovoltaico integrato sulla copertura a servizio del condominio, riducendo drasticamente i consumi e l'impatto ambientale.
Qualità dell’aria (VMC): Un sistema autonomo e puntuale di Ventilazione Meccanica Controllata (VMC) assicura un ricambio d’aria costante e salutare, eliminando l'umidità ed evitando dispersioni termiche.
Tutta la documentazione grafica e testuale è puramente illustrative e non costituisce vincolo contrattuale.
Richiedi una consulenza per conoscere ogni dettaglio di questi appartamenti ad Alba







